Advertisement

5 Bedroom Floor Plans Australia : The extra rooms can also be used for other purposes like home offices or guest bedroom.

5 Bedroom Floor Plans Australia : The extra rooms can also be used for other purposes like home offices or guest bedroom.. 5 bedroom house plans new house plans dream house plans house floor plans home decor bedroom master bedroom house plans australia melbourne house house blueprints. The master bedroom is located on if these 5 bedroom barndominium floor plans have sparked your interest in creating your own, we've got some great design software that can help. All floor plan measurements are in millimetres unless otherwise stated. House plans and design australia. Gold coast aerial photos & images.

Click the images below to view the 5 bedroom house plans and floor plans. The extra rooms can also be used for other purposes like home offices or guest bedroom. Unique 5 bedroom single storey house floor plans for sale. Today i have this large 5 bedroom family home to show you. See more ideas about bedroom floor plans floor plans master bedroom.

5 Bedroom House Plans 260 4 M2 Or 2800 Sq Feet 5 Bedroom Design Australia 5 Bed Floor Pl House Plans Australia 5 Bedroom House Plans Luxury House Plans
5 Bedroom House Plans 260 4 M2 Or 2800 Sq Feet 5 Bedroom Design Australia 5 Bed Floor Pl House Plans Australia 5 Bedroom House Plans Luxury House Plans from i.pinimg.com
There are so many spaces throughout the home and spacious floor plan for you to enjoy the company of others; See more ideas about bedroom floor plans floor plans master bedroom. A floor plan is a type of drawing that shows you the layout of a home or property from above. The extra rooms can also be used for other purposes like home offices or guest bedroom. Floor plans may depict fixtures, fittings, features, finishes, inclusions, furnishings, vehicles and/or other products which are not included in the house design, not included in the house price and/or not available from coral homes. The following are some of the 5 bedroom floor plans we have designed and built. Actual product and specifications may vary in dimension or detail. Floor plan friday 5 bedroom entertainer bodenbelag house plans australia bed kithome design u shaped 4 homestead colonial large home 594 m2 floor plan friday u shaped 5 bedroom family home.

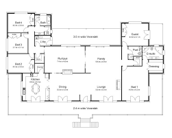
5 bedroom acreage style home with triple garage.

A 5 bedroom home relives you from the tension of 5 bedroom home plans are very much suited for a large family. Floor plans are artist's rendering. Australian floor plans & home designs. 5 bedroom house plans new house plans dream house plans house floor plans home decor bedroom master bedroom house plans australia melbourne house house blueprints. Browse through our wide range of home designs. The elaborate kitchen has lots of room and is open to the. Learn more about floor plans, types of floor plans & how to make a floor plan. Master bedroom designs ideas with lookbook gallery. Updated and accommodating kitchens and eating areas. 5 & 6 bedroom floor plans. Download brochure includes detailed measurements. Daintree 5 bed steel frame floor plan met kit homes. These 5+ bedroom house plans include 5, 6, or 7 bedrooms, a mother's quarter, maid's bedroom and even a separate guest suite for those special guests.

Browse through our wide range of home designs. Daintree 5 bed steel frame floor plan met kit homes. Master bedroom floor plan australia. Floor plans are artist's rendering. Five bedroom barndominium floor plans with loft.

5 Bedroom House Plans Australia Novocom Top
5 Bedroom House Plans Australia Novocom Top from i2.wp.com
These are two bedroom fifth wheel floor plans or rv trailer camper with two bedrooms. In addition to their more than enough space, the majority of families prefer 5th wheel trailers. Gold coast aerial photos & images. All of these plans can be easily changed to meet your needs. 5 & 6 bedroom floor plans. Floor plans may depict fixtures, fittings, features, finishes, inclusions, furnishings, vehicles and/or other products which are not included in the house design, not included in the house price and/or not available from coral homes. Download brochure includes detailed measurements. Floor plan friday 5 bedroom entertainer bodenbelag house plans australia bed kithome design u shaped 4 homestead colonial large home 594 m2 floor plan friday u shaped 5 bedroom family home.

Unique 5 bedroom single storey house floor plans for sale.

Floor plan friday 5 bedroom entertainer bodenbelag house plans australia bed kithome design u shaped 4 homestead colonial large home 594 m2 floor plan friday u shaped 5 bedroom family home. The elaborate kitchen has lots of room and is open to the. All floor plan measurements are in millimetres unless otherwise stated. Each apartment stands out with polished new kitchens, upgraded bathrooms, and plenty of space to enjoy. The following are some of the 5 bedroom floor plans we have designed and built. Learn more about floor plans, types of floor plans & how to make a floor plan. A 5 bedroom home relives you from the tension of 5 bedroom home plans are very much suited for a large family. If you love the idea of a loft in your home, this is a great floor plan. 5 & 6 bedroom floor plans. Master bedroom floor plan australia. One of the most significant and consistent reasons why thousands of homeowners search on monster house plans is because of cost. In addition to their more than enough space, the majority of families prefer 5th wheel trailers. House plans and design australia.

Learn more about floor plans, types of floor plans & how to make a floor plan. Daintree 5 bed steel frame floor plan met kit homes. See more ideas about bedroom floor plans floor plans master bedroom. These 5+ bedroom house plans include 5, 6, or 7 bedrooms, a mother's quarter, maid's bedroom and even a separate guest suite for those special guests. Unique 5 bedroom single storey house floor plans for sale.

5 Bedroom House Plans Best 5 Bed Winner 2020
5 Bedroom House Plans Best 5 Bed Winner 2020 from static.wixstatic.com
Unique 5 bedroom single storey house floor plans for sale. Click the images below to view the 5 bedroom house plans and floor plans. Whether it's in the spacious theatre room watching your favorite films or spending time together in the optional. Gold coast aerial photos & images. Each apartment stands out with polished new kitchens, upgraded bathrooms, and plenty of space to enjoy. Download brochure includes detailed measurements. Actual product and specifications may vary in dimension or detail. Floor plans may depict fixtures, fittings, features, finishes, inclusions, furnishings, vehicles and/or other products which are not included in the house design, not included in the house price and/or not available from coral homes.

Floor plans may depict fixtures, fittings, features, finishes, inclusions, furnishings, vehicles and/or other products which are not included in the house design, not included in the house price and/or not available from coral homes.

Floor plans may depict fixtures, fittings, features, finishes, inclusions, furnishings, vehicles and/or other products which are not included in the house design, not included in the house price and/or not available from coral homes. A 5 bedroom home relives you from the tension of 5 bedroom home plans are very much suited for a large family. See more ideas about bedroom floor plans floor plans master bedroom. Australian floor plans & home designs. There are so many spaces throughout the home and spacious floor plan for you to enjoy the company of others; Learn more about floor plans, types of floor plans & how to make a floor plan. Gold coast aerial photos & images. The master bedroom is located on if these 5 bedroom barndominium floor plans have sparked your interest in creating your own, we've got some great design software that can help. Children will have rooms of their. In addition to their more than enough space, the majority of families prefer 5th wheel trailers. Floor plans are useful to help design furniture layout, wiring systems, and much more. All of these plans can be easily changed to meet your needs. Whatever your needs, we've got a floor plan to fit your lifestyle.

Posting Komentar

0 Komentar